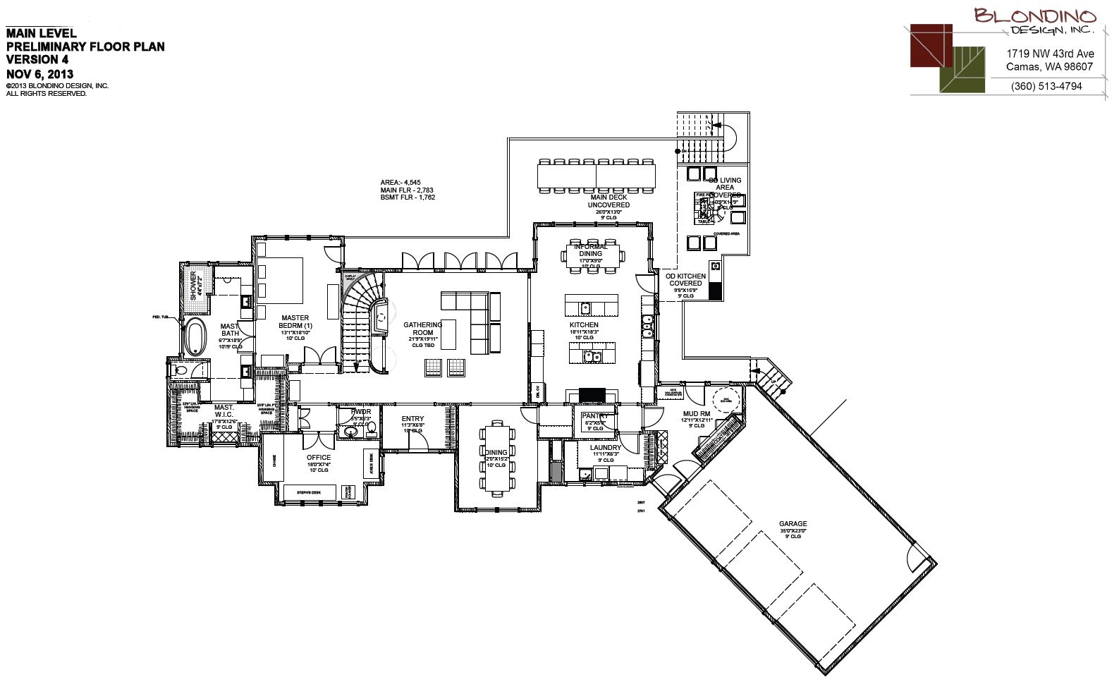
Mike incorporated mostly all of the edits that we had given him and the house is really taking shape. The mudroom reduced significantly in size, although still feels too large and open. However, he was able to add in a door from the front of the house, something I love and think will get a lot of use. The laundry room was expanded by reducing the size of the pantry. The pantry size is now much smaller. Our thoughts were that we really have a lot of cabinetry in the kitchen, so we really will only store food items in the pantry. This is more than enough space to do that. I’m not sure if you noticed, but the previous pantry design had a fridge in there. I love that idea, and it would be so handy, but realistically, I’d rather use the space for a laundry room and put an extra fridge in the garage. The garage is so close to the kitchen anyhow that I doubt it will be a huge issue for us.
The informal dining area in the kitchen was only bumped in a foot on each side. At originally 19 feet wide, this space was too large for our main family eating area. I wanted the room to be bumped in 2 feet on each side which would reduce the width to 15 feet. However, if we did bump it on by 2 feet there wouldn’t be enough room downstairs in the guest room to move around the bed. So, we were only able to bump it in one foot, bummer!
The downstairs didn’t change too much, besides getting resized due to the rooms on the main floor changing in size. The great room still feels too big and we’re not really sure what to do about that. Mike felt the boys bathroom was large enough for the boys. I’m still disagreeing abut that and want to see it expand in size. The downstairs feels so large and to have such a small bathroom feels like a mistake. I’m betting that both boys are going to be over 6 feet tall in high school and since we don’t plan on moving I definitely don’t want it to be cramped in there. We’ll need to see some other ideas that he has to increase that space.

