We’re so excited. Just two days after our last revision we received the latest plan set from Mike. He was working of the exterior of the home and I wanted to make sure that some of the changes I wanted were incorporated before he got too far on the exterior. That meant sending a quick email to him with a list of changes.
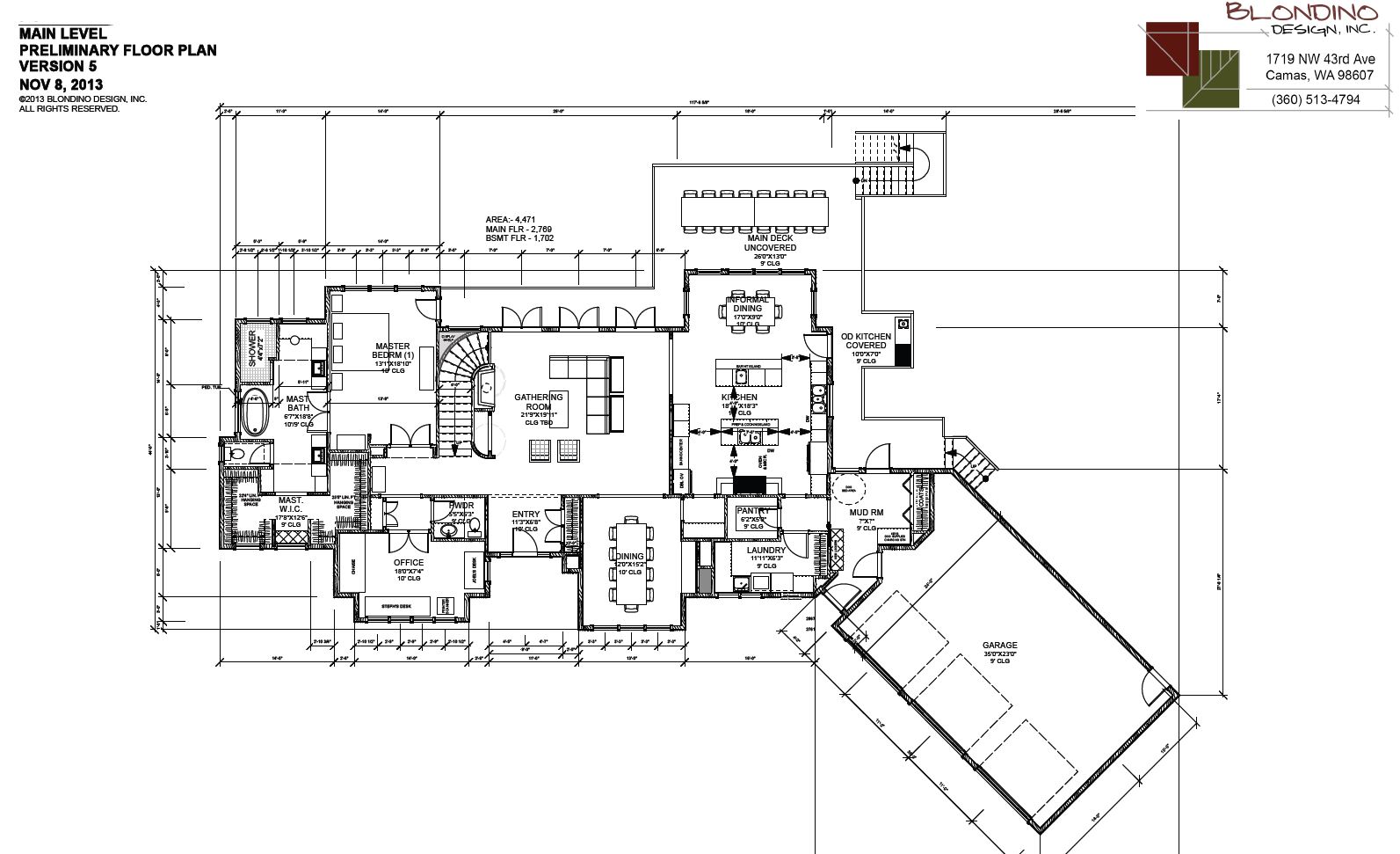
Take a look! By rearranging the guest room and bathroom downstairs we were able to bump in the kitchen in the informal dining space on the main floor by 2 feet instead of just 1 foot. He also rearranged the mudroom and its finally to a size that we love. It will have built in lockers for the boys and a coat closet for us which will not only hold the large array of coats that we have because we live in the northwest, but be a place to store the vacuum and other cleaning supplies as well.
He also shrunk down the great room downstairs which feels so much more appropriate. He did that by increasing the storage on the back wall and by creating a hallway to get to the guest suite. An extra bonus is that by bringing in the back wall, there is now a true “entrance” to what we call the boys’ area. They’ll have a great play/art area and then off of that their bathroom and bedrooms. Also in this round of edits you’ll see that we increased the size of the boys’s bathroom. It now includes a bathtub and a shower. I really like this idea, but since bathrooms are pricey and because Bedroom 2 doesn’t have a walk-in closet, we want to see a different layout for the next round of revisions. We’ve left that design completely up to Mike to create. He’s also thinking that we should have a linen closet outside of the boys’ rooms as well.
Also downstairs, we’ve moved the outdoor living area underneath the main deck. That will create a covered area for hanging out during the summer and keep the main deck for dining. Summer evenings on the property should be pretty shaded due to large evergreens that line the south side of the property so having a covered lounge spec isn’t the highest priority for us. Upstairs we really only want a covered area for barbecuing in the rain.
Mike also sent over a preliminary sketch so that we could see what the outside of the house is now looking like since there’s been significant changes since our first preliminary design. This is only the second time that we’ve seen the outside revision so it’s fun to see how it’s taking shape. The design is pretty rough though and it’s hard to really see what’s going on. The main change is the double gable over the entry/dining room.


