Or latest design revision has really been both fine toothing some areas while others are still figuring out their layout. In the upstairs, minor tweaks have been done. This includes the addition of a picture wall inset at the wall opposite the top of the stairs. The office also changed with the extension of the master closet and the office closet, and the addition of a window seat on the north wall. I’m not 100% sure we’re done with changes in the office though. I’m starting to think that maybe the addition of built-in bookcases might be nice since we don’t have those anywhere in the house yet. The HVAC ductwork also moved near the entry which created more useable space for the laundry room…LOVE that!
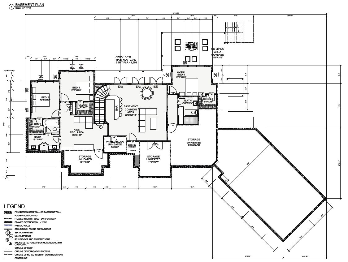
The lower level was rearranged a little bit as well…trying to find the best layout downstairs has been a bit tricky. The boys’ bath was reconfigured to both reduce the bathroom size (since bathrooms are pricey) and create a walk-in closet in Bedroom 2. That’ll be nice for both boys to each have a walk-in closet for sure. Bedroom 3’s closet was actually reduced slightly to create a hall linen closet. That was much needed and will likely hold everything from blankets and sheets to towels and washcloths. Who knows, maybe a few games or puzzles too!
The hallway for the guest room area was also flipped so that the entrance is to the stairs for better flow. The closet in the guest room was also rearranged to allow for windows to be placed on three walls. Since the guest room is located under the main deck, having ample light in that room is important to us. A hall linen storage closet was also added by the guest room.
Mike also gave us another iteration of the exterior of the house with this round of edits. The exterior combines some of the features we liked about his first sketch with others that we liked about his second. As shown below, the roof line is swept and gabled roof lines have been added to the front of the house. Windows have been added above the front door to create a focal point. Mike added two versions for this – one with a gabled roof as shown in the top and bottom perspective views and one with a shed dormer as shown in the middle true elevation view. I’m really not sure what to do about that or which I like better, and I keep thinking about the previous version without windows above the entry with the overlapping gables between the entry and the dining room. All of the designs work, but honesty, none feel perfect right now. I think that we’re going to need to work with Mike and discuss the options more to really come to a good conclusion.


