Today I spent most of the day at my parents’ house where my mom and I spent a long time checking out the plans and making some changes. They still live in the house I grew up in which is 3,200+ square feet. Since it’s difficult to imagine the sizes of the rooms in our plans, we took the dimensions of our house plan and measured them against my parents’ home. This really gave me a great feeling if each of the rooms were big enough or too small.
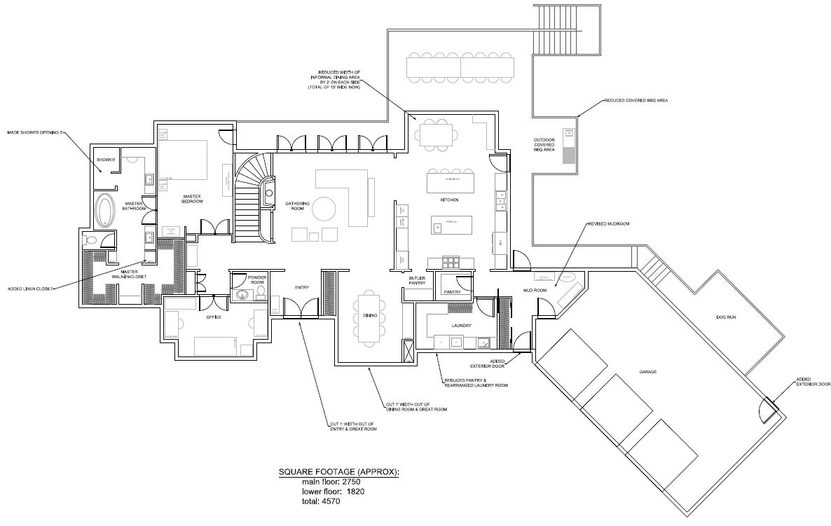
As we’d measure out each room we’d also make changes in CAD to the size/shape as well. This really didn’t affect too many of the rooms, but we did cut a foot out of the dining room. I’m still not sure if this is the right thing, but I’m pretty sure that an 11’ wide dining room will be enough space. I’ll measure a few other people’s dining rooms before settling on that I’m sure. What I like about taking out a foot from the dining room is that it also takes a foot out of the great room and in return a foot out of the downstairs. That really does save some space in two areas that are likely larger than need be. We also took a foot out of the entryway – but that might end up being too tight…we’ll see what Mike says.
We also rearranged the laundry and mudroom area. The mudroom seemed too big, so we’ve made it more of a hallway and added a door to the front. That’ll be nice for friends & family to use when they come in. Plus, as the boys get home from school it will be nice for them to get into the house using that door instead of either opening up the garage door or going through the front. I really like that change! The pantry shrunk quite a bit in size since the last version. Although I would LOVE to have a huge pantry with an extra fridge as Mike had shown, I’d rather have that space in the laundry room. I figure that we can put an extra fridge in the garage, which really isn’t too far away from the kitchen anyhow. And for an infrequent as we’ll use it, I’m sure that will be just fine.
One of the other things we did is bump in the informal dining area in the kitchen by 2’ on each side. This is something that Mike had suggested, so I definitely can’t take that credit. I had mentioned how I thought it was pretty big and he said that if we bumped the walls in to the width of the counter on each side your eye won’t even know that you did it. And actually, my parent’s kitchen/eating area is the exact same way. And he’s right…neither my mom nor I had ever noticed that!
We shrunk down the space outdoors for the covered BBQ area. Mike feels strongly that we need a great outdoor entertaining space, especially covered given the weather in the Pacific Northwest. The feeling of, “if you build it, they will come” for the outdoors. And I do agree with him; however, I still made the space smaller – and just for the bbq area. I figure that the deck off of the main level will create a great covered area downstairs. We still haven’t settled on anything so I’m sure that will be a discussion we’ll get more into later.
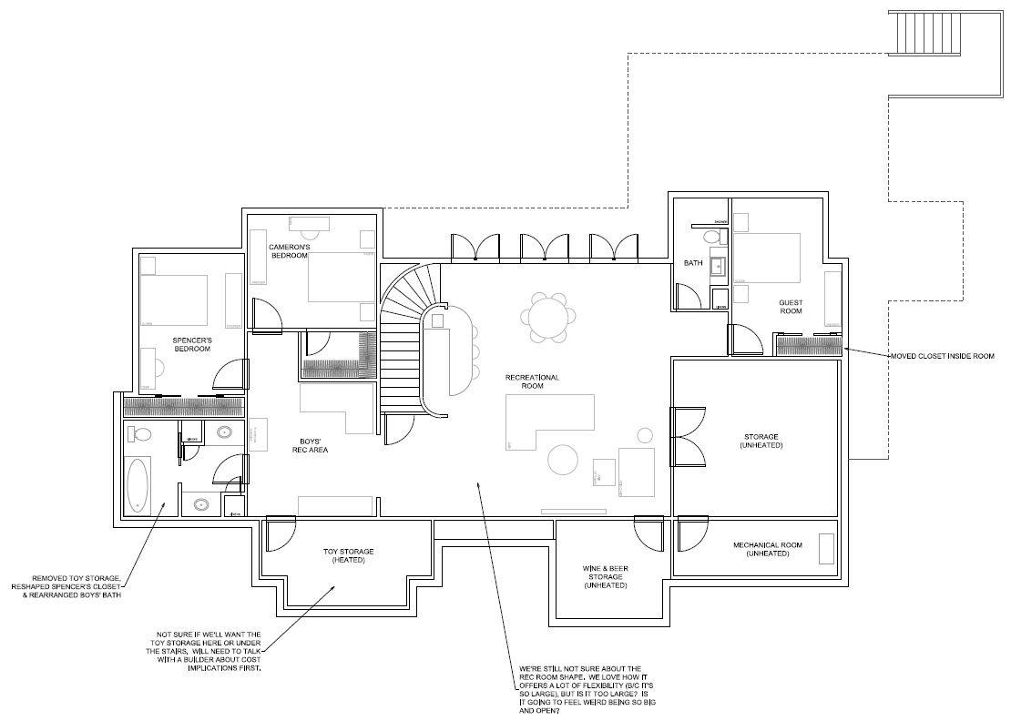
For the downstairs, I felt that the boys’ bathroom was sort of tight and with Joel being 6’2” and both of the boys in the 90% percentile for height, I thought they may need more room. In doing so, the toy storage closet downstairs was moved and I’m not sure how I feel about that. We’ll need to see the cost implications of what we’re proposing. Definitely need to talk with a builder about that one.
I didn’t make any edits to the downstairs great room – it’s really big, and maybe too spacious. Do you know how when you’re in too big of a room that it doesn’t feel comfortable? We really want the downstairs great room to feel casual and comfortable. We’re really not sure what to do about that though. It’s difficult because the shape of the downstairs is really dependent on the shape/space of the upstairs. And we really are really loving the upstairs!

