Mike was able to quickly turn around our comments on version 2 in just 2 days! Although we’re in no hurry to get the design done, I always love seeing the changes from Mike in an updated design.
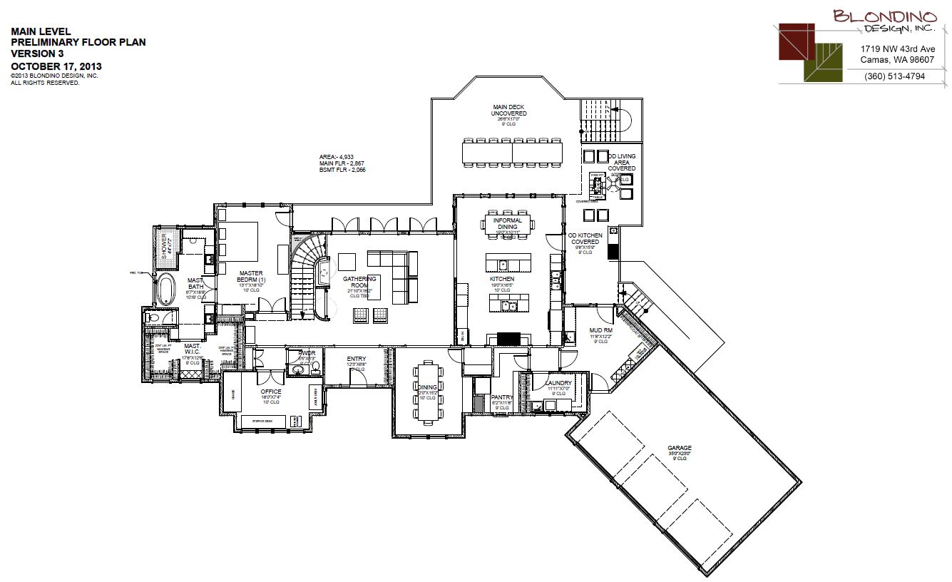
Mike was able to remove the hallway near the kitchen which cuts down on square footage. That made us gain a butler’s pantry so access to the dining room from the kitchen is easy and convenient. It also pushed the pantry closer to the kitchen which is perfect. Working with Mike is great because he’s able to take my ideas and improve them. For example, I originally had drawn the pantry to be accessed from the butler’s pantry. But it definitely makes more sense how Mike drew it. The door to the pantry is closer to the garage so we’re able to take groceries straight from our car and into the pantry if needed.
He also moved the powder room over by the office and rearranged the office shape to create less wasted space in there. When I first saw the placement of the powder room I wasn’t sure if I liked the door to be “around the corner” in the little alcove to the office instead of off of the main hallway. But the more I look at it, the more I love it. The door is hidden and as people walk up the stairs from the lower level they’re not staring into the bathroom. I’m able to hang some art or family pictures on the wall instead. Definitely a huge improvement! Mike has such great ideas. It’s surprising how little changes like the orientation of a door can really make a home feel either perfect or awkward. Take a look at the changes below.
The basement has a lot more detail than it did last time too. The boys’ recreation area was added near their bedrooms along with a closet for toy storage – we can always use that! And the guest room was reoriented so that the bathroom was outside of it. Perfect! Mike also added an unheated space for beer & wine. Joel is really getting into different types of microbrews, so having a space to store them in a cool temperature is definitely someting that he wanted downstairs. This also should be pretty inexpensive since the only real cost to us will be the addition of a door and maybe some electrical for lighting and/or an outlet or two in there. Nothing fancy for sure.

