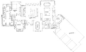
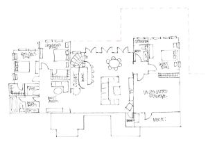
Based on all of the edits, I discussed in my previous post, I sketched up the main and lower floor plans to send to Mike. I’m really not sure how most people send edits back to Mike, but I thought this was the best way since I wanted to shift rooms around.
I removed the hallway between the kitchen and the dining room and created a butler’s pantry, which also moved the kitchen pantry closer to the kitchen which I like. The mudroom and laundry room still need some work – the mudroom seems big, but that’s for Mike to figure out. We thought that by removing the hallway that the old location of the powder room was too close to the kitchen (nothing worse than that), so I moved it over by the office. This change affected the master closet so that will have to be finessed into the best space.
Downstairs I shrunk down the size of the boys’ bedrooms to create a little play area outside of their rooms. That way their toys are spilling all over the downstairs. I really wanted our guests to be able to use the bathroom that the guest room uses, so pulled the bathroom out of the guest room and created a little hallway. That way, when guests are there, they feel that the bathroom is theirs, but ultimately it’s accessible for everyone. Finally, I changed some of the downstairs into unfinished storage area to use up some of the space down there.

