Mike really gave us a great start for the first draft of our house. The basic idea and room placement I think will be pretty close to what we eventually end up with.
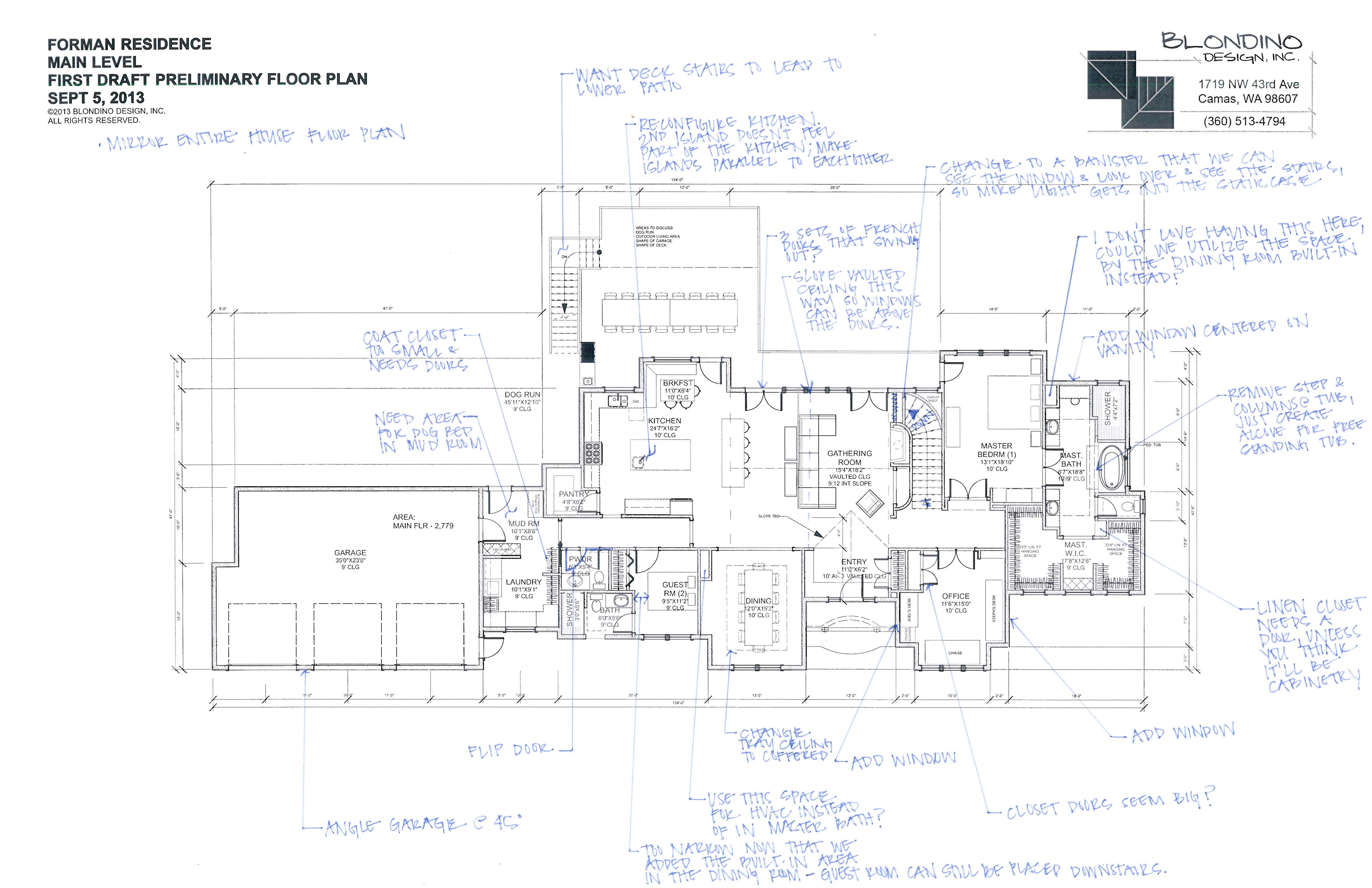
As you can see in the marked-up version below, we do have a few changes that we want to make though. For starters, we want the entire house to be reversed and for the garage to be at a 45 degree angle. The angle of the house will follow the contours of the property on the south side which will require less cut/fill and ultimately save on construction costs. We also aren’t loving how the kitchen is currently laid out (this was my original concept for the kitchen). The island with the barstools feels like it’s in “no man’s land” and not truly a part of the kitchen. We talked about making the two islands parallel with each other and changing the shape of the kitchen. The nook area is something that I love, so we’ll have to see how that plays out in the next round of revisions as well. With the angling of the garage, the laundry & mudroom will need to change in shape and will reconfigure the layout a touch. I absolutely love the laundry room as is, but the mudroom needs to be changed a bit. It currently doesn’t have a great space for a dog bed and the coat closet is much too small for us. We have a ridiculous amount of coats, and I also want the closet to hold the vacuum and other cleaning supplies.
Mike already added in a bump out in the dining room for us, but that meant that the guest room shrunk in size, so that’ll need to get fixed with the new layout as well. I’m actually not even 100% on having the guest room on the main level. It will be the least used room of the entire house so I’m thinking that it would be just fine to have it in the lower level. We might end up with a few iterations of exactly where that suite will be placed. If we do keep it on the main level, we’ll likely end up combining the guest bath with the powder bath.
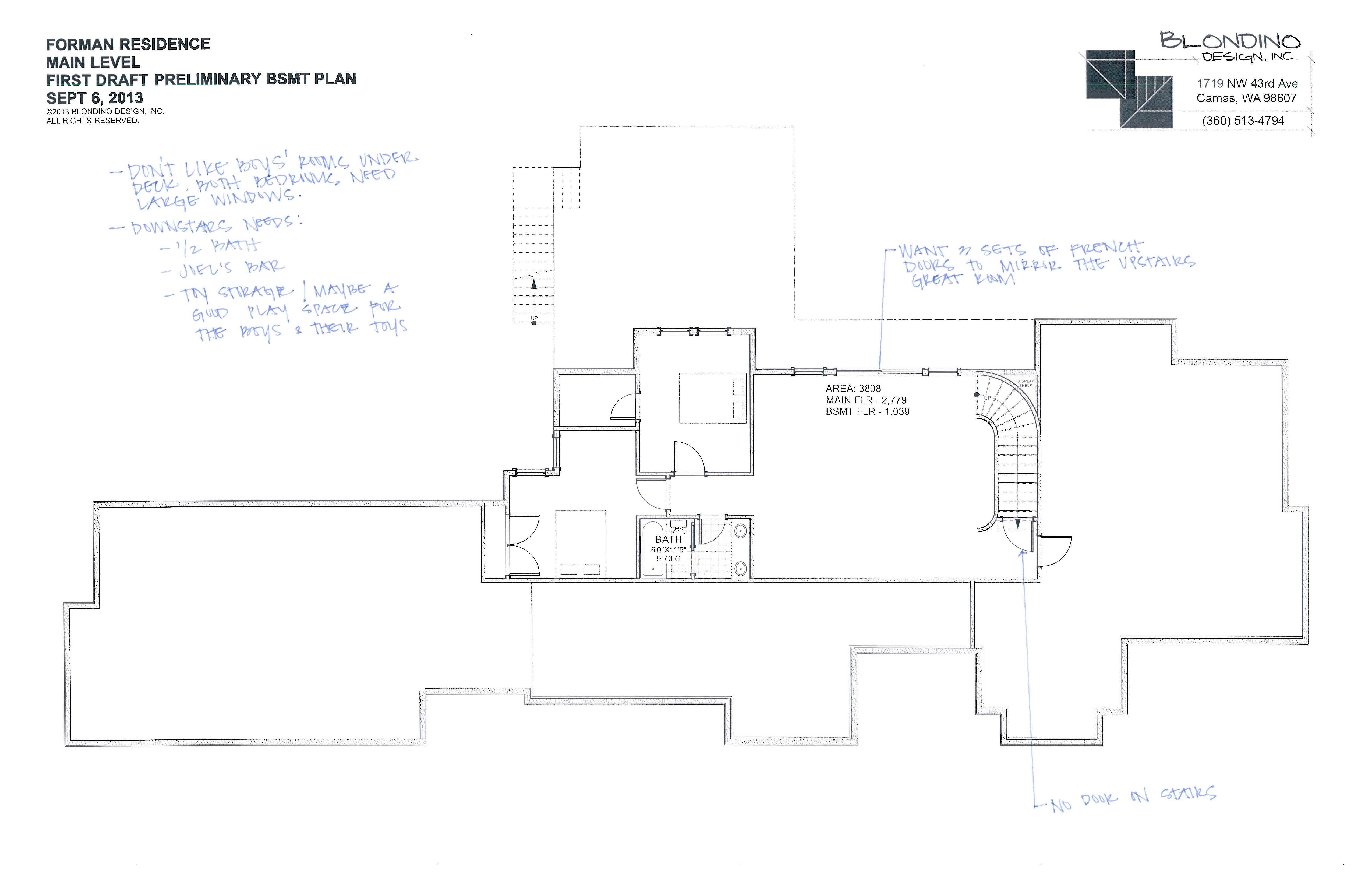
For the lower level, I didn’t really do any markups, we’ll focus more on that in the next round. My major concern is that the boys’ rooms are under the deck, which I dislike. They need to have great windows, which may mean putting them underneath our bedroom. I’m still not sure how I feel about that though. To be honest, the boys’ rooms have really stumped me. Although there’s ample room for them on the lower level, I definitely don’t want them under the deck and I’m not sure that I want them under our bedroom as well. I’m going to wait to see how it all shapes out after this next round of revisions, but we may end up building a ½ story above the kitchen/garage to put the boys. That of course adds quite a bit of expense, so hopefully we’ll be able to keep them downstairs.
The front exterior elevation is beginning to take shape. My main comment is that it’s SO MUCH ROOF! This is especially true for the roof above the guest room/dining room. I realize that most single level homes have a lot of roof, so I’m not sure how to fix that. My other comment is that the look I want to go for is really a Nantucket beachy cottage type and right not it’s feeling a little too French country. That might have something to do with all of the hipped roofs, where the Nantucket style is based more on shingle-style homes which typically have gable style roofs. I think Mike will really need to innovate on the exterior for version 2!
Below I doodled around and made changes to the exterior of the house, but I really have no business whatsoever in changing roof lines, etc. I honestly have no idea what I’m doing when it comes to the exterior of the house, so really they’re just more ideas than anything. But hopefully it conveys what I’d like to have the house end up looking like.
Speaking of version 2, we waited on providing all of our feedback to Mike so that we could really mull over the plans before Mike gets started on the revisions. Mike had a couple of other projects that are in the works as well, so we’ve asked to wait two weeks before he gets going again. This not only worked out well for his workload, but gave us time to really digest the design and for us to think more about the direction that we want him to head in. In addition, that gave us time to get friends and families opinions about the design as well!


