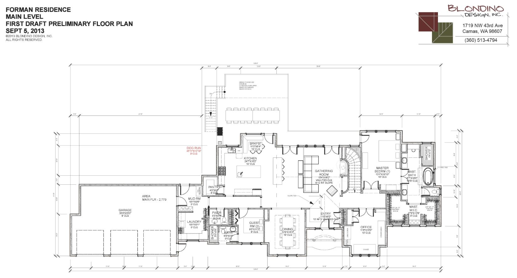
This weekend Mike Blondino emailed us the first version of our preliminary plans. When we had visited him last month I had showed him an idea of a house floorplan that I came up with – which definitely needed a lot of work. So he used the design I came up with as a basis to begin his work.
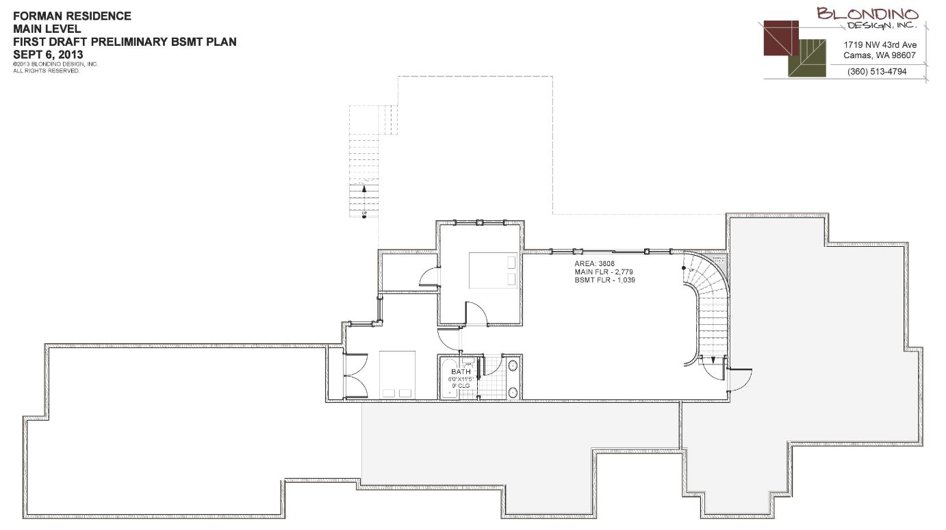
As you can see in the attached plan, it’s really a great start! It has a large great room open to the kitchen. The kitchen has two islands (our dream), and the dining room seats 10 to 12 with the option to extend the table into the great room when we have large family gatherings. Holidays for our family typically have 30 people all at one long table. Which is fun, but definitely requires a large space. The office is near the entry so that when we work from home we can see who’s arriving and keep an eye on the house, and the master has a large walk-in closet. We requested a mudroom that attached to the garage but also opens to the backyard. The mudroom will be where we keep the dogs during the day, so having access to the backyard is key for their daytime play and pottying. The mudroom also needs to be able to hold all of our coats and have a space for the boys to drop their school bags. With the slope of the lot, our house will need a downstairs with a walkout to the backyard. We want the space to be inviting and absolutely not feel like a typical “basement”…so tall ceilings and ample light are a must. Right now, we’re trying to design the house with the boys’ rooms in the lower level of the house, as well as family room. Mike spent his time focused on the upstairs, because that’s truly what’s going to shape the lower level. There’s plenty of room down there to have a family room and the boys’ rooms and that layout comes secondary to the upstairs.
The exterior front elevation is really starting to take shape as well, check it out below. There’s no detail yet for different material types or colors, but it does give us a good idea of what it’s starting to look like!
I already know of a few edits that we have for version 1, but we’ll need to spend a few days to really get those nailed down!


