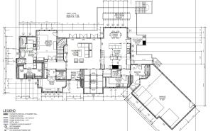
At this point we really feel good about how the house floor plan is shaping up and really it’s just details that we’re working on now. After seeing the kitchen layout in Arizona, we decided that adding a pass through in the kitchen would be good…to really open up the space. Mike added that into this version of the design. I’m thinking that it’s a little small, and that we’ll likely want to increase it even more to open up the space though. At the top of the stairs, we increased the depth of the “picture wall” in Version 6 to be a bookcase in Version 7. That’ll give us more flexibility for a built-in or shelves (or both). We also added in the coffered ceiling in the dining room – love that! There’s really not much else that changed on the first floor, except for the swing of the laundry back door.
The downstairs space is really turning out great now. We’re loving the layout that Mike came up with and really there’s only minor tweaks on this floor too. We decided to switch Bedroom 2’s closet location with the shower/toilet room. This will give more privacy to the bathroom and depending on how the site is graded, we may be able to add a window in there as well. We actually debated a lot about the shower vs. tub in the boy’s bath and ultimately landed on a walk-in shower. Really the boys only take showers as it is now and every blue moon take a bath in our soaker tub. So we figured that they can use our tub in the new house too. So we removed their bathtub and gave them a shower. All of the bathrooms in the house have showers without doors. We’re thinking that’ll be pretty nice not to have to clean any shower glass. In the guest bath downstairs, we took half of the closet from the hallway and flipped it to be in the bathroom. That creates a decent sized linen closet in there for guests and toiletries.
The outside of the house is where we’re now focusing our attention. To us, it’s been difficult to really figure out what we want this house to look like. In the northwest, the majority of homes are two stories from the front of the house…so having a one story is different than I ever envisioned my dream home. Mike gave us a couple of different options in Version 6 to look at and now with Version 7 gave us yet another one. I do like how some of the gables in the front of the house overlap, however it feels off-balance to me.


